Wipmolen 18, Harmelen - Sijmons Dolata
background-image

Wipmolen 18

Harmelen
€ 749.500,- k.k.
168 m 2 229 m 2 5 A++

Omschrijving

Uitgebouwde twee-onder-een-kapwoning met 5 slaapkamers, garage en een heerlijke tuin op het zuiden. De woonkamer met keuken beslaat maar liefst ca. 64 m² en heeft aan de achterzijde veel glas en een schuifpui welke in 2024 vernieuwd is. De achtertuin is volledig omsloten door groen en grenst aan de achterzijde aan openbaar groen met een speelweide. Dit zorgt voor een vrije ligging, veel privacy en een heerlijk uitzicht. Binnen vind je een lichte woon-/eetkamer met een stenen vloer voorzien van vloerverwarming en een sfeervolle open haard. De garage wordt nu gebruikt als berging, maar is eenvoudig weer als garage te benutten door een garagedeur te plaatsen. Parkeren kan bovendien op je eigen oprit. Op de eerste verdieping is naast de 3 slaapkamers een keurige badkamer (2019) en op de tweede verdieping zijn twee slaapkamers, waarbij er op de overloop een wastafel is geplaatst. Ook op het gebied van verduurzaming is er veel gedaan. Zo beschikt de woning over maar liefst 26 zonnepanelen en is er in 2022 een hybride warmtepomp geplaatst. In 2023 zijn bovendien zowel het dak als de spouwmuren geïsoleerd. Dit alles resulteert in een gunstig energielabel A++ en zorgt voor lage energiekosten en extra wooncomfort. De woning heeft een inhoud van 666 m³, gebruiksoppervlakte wonen van 168 m² en is gelegen op een perceel van 229 m² eigen grond

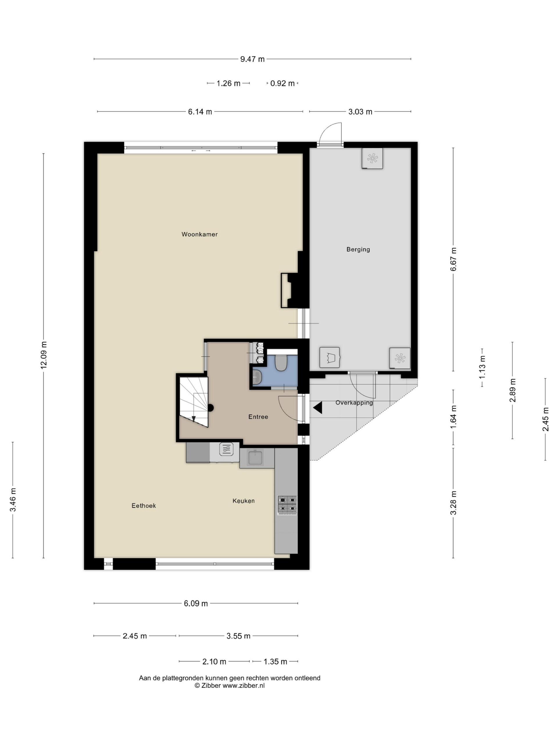
Begane grond
Je komt binnen in een ruime hal met garderobekast en een modern toilet met fontein. Het toilet is vrijhangend en tot circa één meter hoog betegeld. De lichte woon- en eetkamer is aan de achterzijde uitgebouwd en beslaat samen met de keuken een oppervlakte van circa 64 m². De plavuizen vloer met vloerverwarming (bijverwarming) zorgt hier voor veel comfort. Aan de achterzijde geven de nieuwe schuifpui (2024) en de grote ramen een prachtig zicht op de zonnige, op het zuiden gelegen achtertuin. De keuken ligt aan de voorzijde van de woning en is uitgerust met diverse inbouwapparatuur, waaronder een verhoogd geplaatste vaatwasmachine, combi-magnetron, koelkast en een 4-pits gasfornuis. Vanuit de woonkamer heb je direct toegang tot de aangebouwde garage. Deze is momenteel in gebruik als berging en hier is de wasmachine geplaatst.

Eerste verdieping
Op de eerste verdieping kom je op een ruime overloop die toegang geeft tot 3 slaapkamers en de badkamer. Twee slaapkamers zijn afgewerkt met vloerbedekking, terwijl de derde slaapkamer is voorzien van een pvc vloer. Alle wanden zijn strak afgewerkt met fijn spachtelputz. De badkamer is keurig afgewerkt, volledig betegeld in een lichte kleurstelling en voorzien van vloerverwarming. Je vindt hier een ruime douche, een modern wastafelmeubel en een vrijhangend toilet.

Tweede verdieping
Deze verdieping telt 2 ruime slaapkamers, beide voorzien van een dakkapel die voor veel lichtinval en extra ruimte zorgt. De kamers zijn afgewerkt met een pvc vloer en schilderwerk wanden. De overloop biedt bovendien praktische extra ruimte: hier vind je een kastenwand, een berging en de hybride warmtepomp. De overloop is verder voorzien van een wastafel en een vlizotrap die toegang geeft tot de vliering.

Tuin en parkeren
De op het zuiden gelegen tuin is fraai aangelegd en biedt veel privacy dankzij het groen en de vrije ligging Er zijn twee ruime terrassen en er is middels de garage een achterom aanwezig. Aan de voorzijde kun je parkeren op eigen terrein. Indien gewenst is er de mogelijkheid om een auto op te laden (laadpaal ter overname)

Lees verder

Kenmerken

  • Soort woning Twee onder een kapwoning
  • Type woning Beschikbaar
  • Bouwjaar 1975
  • Bouwvorm Bestaande bouw
  • Energie label A++
  • Vraagprijs € 749.500,- Kosten koper
  • Aanvaarding In overleg
  • Soort dak Zadeldak
  • Onderhoud binnen Goed
  • Onderhoud buiten Goed
  • Aantal kamers 6 kamers
  • Aantal slaapkamers 5
  • Aantal badkamers 1 badkamer
  • Badkamervoorzieningen Toilet, douche, wastafelmeubel
  • Aantal woonlagen 3 woonlagen
  • Voorzieningen Zonnepanelen
  • Isolatie Dakisolatie, muurisolatie, vloerisolatie, dubbel glas
  • Verwarming Cv ketel, warmtepomp
  • Warm water Cv ketel
  • C.v.-ketel type Gas
  • C.v.-ketel bouwjaar 2022
  • Eigendom Eigendom
  • Ligging Aan park, aan rustige weg, in woonwijk
  • Hoofdtuin Achtertuin
  • Oppervlakte hoofdtuin ca. 104m2
  • Ligging hoofdtuin Zuid
  • Achterom
  • Kwaliteit tuin Fraai aangelegd
  • Schuur / berging
  • Aantal schuren / bergingen
  • Voorzieningen
  • Parkeerfaciliteiten Openbaar parkeren, op eigen terrein
  • Garage Garage mogelijk
  • Gebruiksoppervlakte wonen ca. 168 m2
  • Oppervlakte gebouwgebonden ca. 5m2
  • Externe bergruimte
Toon meer

Heb je vragen?

Neem vrijblijvend contact met ons op

Plattegronden

Locatie

    Statistieken

    Leeftijd in gemeente

    0 - 15
    15 - 25
    25 - 45
    45 - 56
    65+

    Leeftijd buurt bewoners

    0 - 15
    15 - 25
    25 - 45
    45 - 56
    65+

    Burgelijke staat

    Gehuwd
    Ongehuwd
    Gescheiden
    Verweduwd

    Gezinnen met kinderen

    Met
    Zonder
    Geen

    Weet jij wat je kunt lenen?

    Charlotte checkt het gratis en snel, zodat we samen weten wat je mogelijkheden zijn om een nieuw huis aan te kopen.

    gesprek plannen
    samen succes

    Contact opnemen?