Terschellingkade 18, Woerden - Sijmons Dolata
background-image

Terschellingkade 18

Woerden
€ 435.000,- k.k.
92 m 2 2 A

Omschrijving

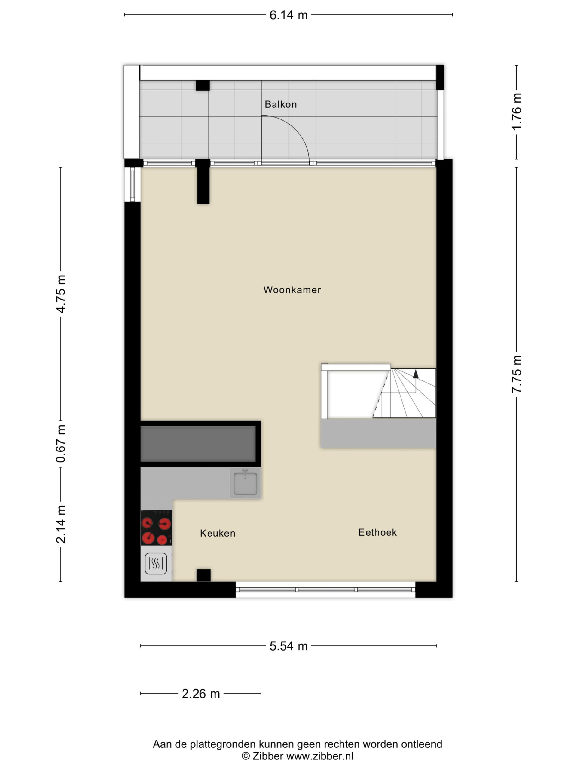
In het verzorgde appartementencomplex Pelaene Hof ligt deze verrassend ruime 3-kamer maisonnette, verdeeld over de begane grond en de eerste verdieping. De maisonnette heeft een fijne ligging met vrij uitzicht over het water en groen en heeft een balkon op het zuidoosten, welke op de eerste verdieping gelegen is. De woonkamer met open keuken beslaat samen circa 46 m² en is dankzij de grote ramen heerlijk licht. Omdat deze woning grenst aan de doorgang naar het binnenplein, profiteert dit type van extra ruimte ten opzichte van de standaard indeling. Op de begane grond vind je twee goed bemeten slaapkamers en een nette badkamer. In de kelder heb je de beschikking over een eigen berging en op de begane grond is er een gezamenlijke fietsenberging aanwezig. De locatie is bijzonder praktisch: binnen enkele minuten lopen sta je bij winkelcentrum Snel & Polanen, waar je terecht kunt voor al je dagelijkse boodschappen, een huisarts en een apotheek. Ook het levendige centrum van Woerden is eenvoudig te bereiken, net als de uitvalswegen richting Utrecht, Gouda en Rotterdam. Parkeren kan direct rondom het complex. De maisonnette heeft een inhoud van 302 m³, gebruiksoppervlakte wonen 92 m² en de servicekosten bedragen ca. € 208,- per maand.

Eerste verdieping
De eerste verdieping is volledig ingericht als leefruimte, met een lichte woonkamer en een open keuken. De laminaatvloer en de wanden met fijn granol en schilderwerk zorgen voor een verzorgde uitstraling. De keuken bevindt zich aan de voorzijde en is uitgevoerd in een hoekopstelling. Deze keuken, geplaatst in 2016, is uitgerust met een 4-pits inductiekookplaat, een rvs-afzuigkap (recirculatie), combi-magnetron, koelkast en vaatwasmachine. Het geheel is afgewerkt met een granito aanrechtblad. Aan de zuidoostzijde ligt over de volle breedte van de maisonnette een overdekt balkon. Dankzij de ligging op de eerste verdieping geniet je hier van een mooi uitzicht en heb je bovendien veel privacy, zonder directe inkijk vanaf de straat.

Begane grond
Door de opzet van de woning is er een ruime entree en hal aanwezig. Op de begane grond vind je de twee slaapkamers, de badkamer, het toilet en 2 inpandige bergingen. De hoofdslaapkamer is ruim van opzet en voorzien van een walk-in-closet. De laminaatvloer en de wanden met fijn grenol en schilderwerk maken het geheel een rustige en verzorgde ruimte. De tweede slaapkamer is recent gemoderniseerd en afgewerkt met een visgraat parketvloer. Daarnaast is er onder de trap een handige inbouwkast aanwezig. Het separate toilet is volledig tot het plafond betegeld en uitgevoerd met een vrijhangend toilet en fontein. De badkamer is eveneens betegeld tot aan het plafond en beschikt over een douche en een dubbel wastafelmeubel. De maisonnette beschikt over twee inpandige bergingen. De eerste biedt plek voor de wasmachine en droger en herbergt tevens de c.v.-combiketel. De tweede berging ligt direct naast de voordeur en is ideaal te gebruiken als garderobe of extra opslagruimte.

Lees verder

Kenmerken

  • Type woning Verkocht onder voorbehoud
  • Bouwjaar 1996
  • Bouwvorm Bestaande bouw
  • Energie label A
  • Vraagprijs € 435.000,- Kosten koper
  • Aanvaarding In overleg
  • Soort dak Plat dak
  • Onderhoud binnen Goed
  • Onderhoud buiten Goed
  • Aantal kamers 3 kamers
  • Aantal slaapkamers 2
  • Aantal badkamers 1 badkamer
  • Badkamervoorzieningen Douche, dubbele wastafel
  • Aantal woonlagen 2 woonlagen
  • Voorzieningen Mechanische ventilatie
  • Isolatie Volledig geisoleerd
  • Verwarming Cv ketel
  • Warm water Cv ketel
  • C.v.-ketel type Gas
  • C.v.-ketel bouwjaar 2011
  • Eigendom Eigendom
  • Ligging In woonwijk
  • Hoofdtuin Zonneterras
  • Oppervlakte hoofdtuin ca. 11m2
  • Ligging hoofdtuin Zuidoost
  • Achterom
  • Kwaliteit tuin Normaal
  • Schuur / berging Box
  • Aantal schuren / bergingen 1
  • Voorzieningen
  • Parkeerfaciliteiten Openbaar parkeren
  • Garage Geen garage
  • Gebruiksoppervlakte wonen ca. 92 m2
  • Oppervlakte gebouwgebonden ca. 8m2
  • Externe bergruimte ca. 5m2
Toon meer

Heb je vragen?

Neem vrijblijvend contact met ons op

Plattegronden

Locatie

    Statistieken

    Leeftijd in gemeente

    0 - 15
    15 - 25
    25 - 45
    45 - 56
    65+

    Leeftijd buurt bewoners

    0 - 15
    15 - 25
    25 - 45
    45 - 56
    65+

    Burgelijke staat

    Gehuwd
    Ongehuwd
    Gescheiden
    Verweduwd

    Gezinnen met kinderen

    Met
    Zonder
    Geen

    Weet jij wat je kunt lenen?

    Charlotte checkt het gratis en snel, zodat we samen weten wat je mogelijkheden zijn om een nieuw huis aan te kopen.

    gesprek plannen
    samen succes

    Contact opnemen?