Middelmolen 28, Harmelen - Sijmons Dolata
background-image

Middelmolen 28

Harmelen
€ 510.000,- k.k.
119 m 2 153 m 2 4 A

Omschrijving

Ruime eengezinswoning in rustig hofje van de Molenwijk. In een autoluw en kindvriendelijk hofje in de Molenwijk staat deze lichte tussenwoning met vier slaapkamers. De woonkamer en keuken hebben grote glaspartijen aan beide zijden, waardoor je de hele dag door geniet van een fijne lichtinval. De buitenzijde van de woning is netjes onderhouden en er is een handige stenen berging aanwezig. Op de eerste verdieping vind je drie ruime slaapkamers en een moderne badkamer. De tweede verdieping is geïsoleerd en ingericht met een vierde slaapkamer en voorzolder. Je woont hier op loop- en fietsafstand van scholen, speeltuintjes en het centrum van Harmelen met supermarkt en andere voorzieningen. Een ideale plek voor gezinnen die rustig willen wonen met alles dichtbij. De woning is voorzien van 11 zonnepanelen, de cv-ketel is in 2014 vernieuwd en in 2024 is de vloer extra geïsoleerd. Deze verbeteringen zorgen samen voor een energiezuinig huis met energielabel A. De woning heeft een inhoud van 442 m², gebruiksoppervlakte wonen 119 m² en is gelegen op een perceel van 153 m².

Begane grond
Je komt de woning binnen via de entree met hal, meterkast, garderobe en een toilet. Het toilet, vernieuwd in 2017, is uitgevoerd als vrijhangend toilet met fontein en volledig tot het plafond betegeld. Aan de voorzijde bevindt zich de keuken in L-opstelling, compleet met inbouwkoelkast, 4-pits keramische kookplaat, rvs-afzuigkap, vaatwasmachine (2024) en een oven (deze is defect). De achterzijde is in 2014 en 2015 voorzien van onderhoudsvriendelijke kozijnen en dakkapel met HR ++ glas. De ruime woon-/eetkamer ligt aan de achterzijde van de woning en is dankzij de nagenoeg volledig glazen achterpui heerlijk licht. De begane grond is afgewerkt met een laminaatvloer en schilderwerk op de wanden. Vanuit de glazen voorpui met ruime openslaande ramen heb je vrij zicht op de op het zuiden gelegen tuin en het speelplein. Via een deur in de woonkamer loop je zo de achtertuin in, die in 2019 volledig is heringericht met terrassen en groene borders.

Eerste verdieping
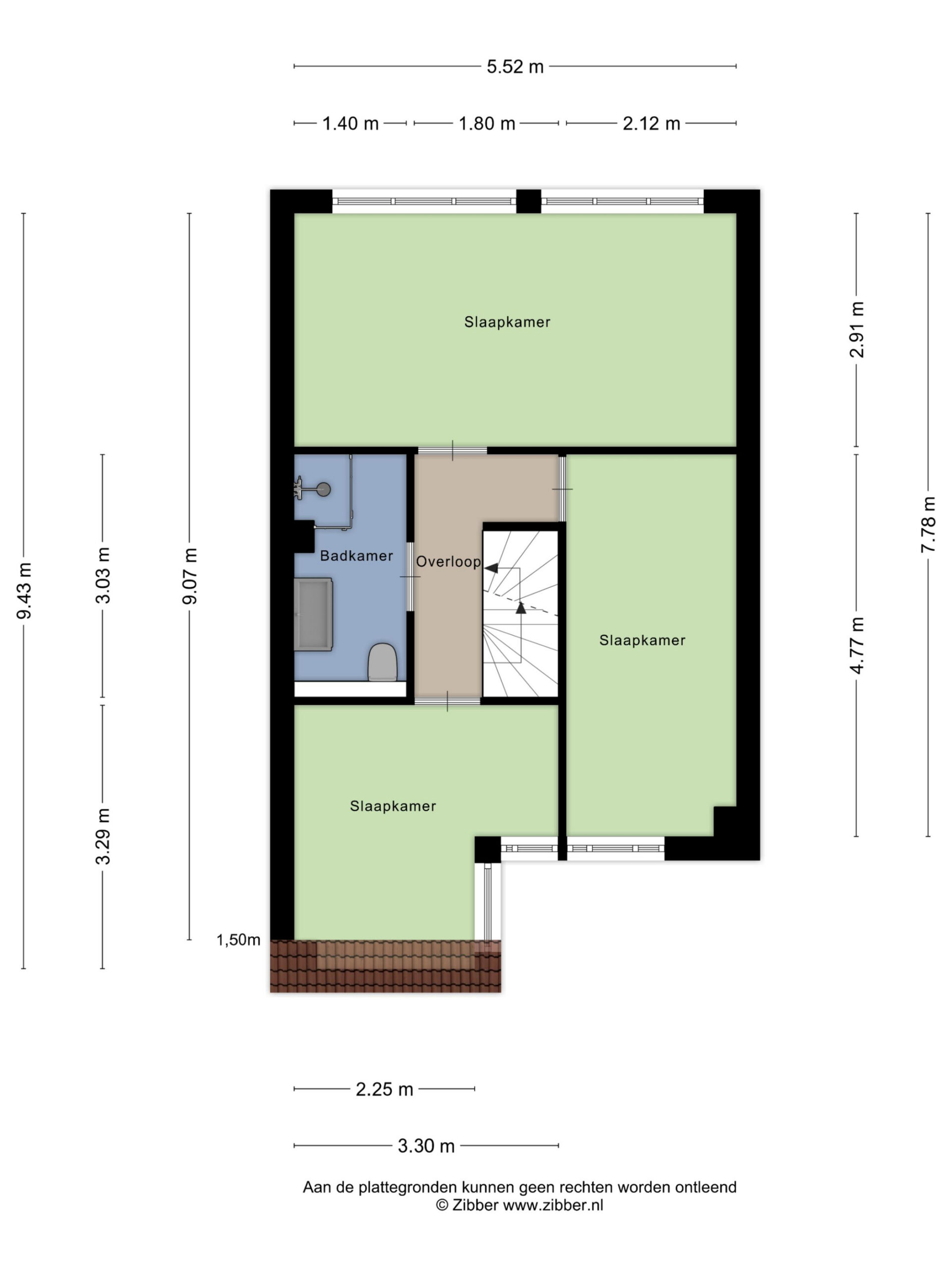
Via de afsluitbare trap in de woon-/eetkamer kom je op de eerste verdieping. Hier vind je drie slaapkamers, allemaal voorzien van schilderwerk op de wanden, en de gehele verdieping is afgewerkt met een laminaatvloer. De badkamer, vernieuwd in 2017, is luxe en modern uitgevoerd met een inloopdouche, wastafelmeubel en vrijhangend toilet. Het geheel is tot het plafond betegeld, voorzien van vloerverwarming en een verlaagd plafond met inbouwspots. De kozijnen aan de achterzijde van de woning zijn in 2015 vernieuwd door kunststof met HR++ glas.

Tweede verdieping
Via een vaste trap bereik je de tweede verdieping, met een ruime voorzolder en een slaapkamer. Op de voorzolder bevinden zich de opstelplaats voor de was- en droogmachine, de cv-combiketel en er is een wastafel aanwezig. De dakkapel is in 2015 geplaatst en voorzien van HR++ glas. In 2024 zijn de dakramen aan de voorzijde vervangen, die eveneens zijn voorzien van HR ++ glas en is er onderhoud gepleegd aan de schoorsteen, deze is voorzien van een schoorsteenkap. De kamer is afgewerkt met een laminaatvloer en schilderwerk op de wanden. Boven de slaapkamer is een ruime bergzolder aanwezig. Tenslotte: de eigenaren hebben hier altijd met enorm veel plezier gewoond, vooral met opgroeiende kinderen is het een heerlijke plek, waar in de zomer ook regelmatig met de buren op het pleintje contact wordt onderhouden. Zij zijn dan ook benieuwd wie ze als nieuwe bewoners mogen verwelkomen!

Lees verder

Kenmerken

  • Soort woning Tussenwoning
  • Type woning Beschikbaar
  • Bouwjaar 1975
  • Bouwvorm Bestaande bouw
  • Energie label A
  • Vraagprijs € 510.000,- Kosten koper
  • Aanvaarding In overleg
  • Soort dak Zadeldak
  • Onderhoud binnen Goed
  • Onderhoud buiten Goed
  • Aantal kamers 5 kamers
  • Aantal slaapkamers 4
  • Aantal badkamers 1 badkamer
  • Badkamervoorzieningen Toilet, douche, wastafel
  • Aantal woonlagen 3 woonlagen
  • Voorzieningen Zonnepanelen
  • Isolatie Dakisolatie, muurisolatie, vloerisolatie, dubbel glas
  • Verwarming Cv ketel
  • Warm water Cv ketel
  • C.v.-ketel type Gas
  • C.v.-ketel bouwjaar 2014
  • Eigendom Eigendom
  • Ligging In woonwijk
  • Hoofdtuin Achtertuin
  • Oppervlakte hoofdtuin ca. 54m2
  • Ligging hoofdtuin Noord
  • Achterom
  • Kwaliteit tuin Normaal
  • Schuur / berging Aangebouwd steen
  • Aantal schuren / bergingen 1
  • Voorzieningen Voorzien van elektra
  • Parkeerfaciliteiten Openbaar parkeren
  • Garage Geen garage
  • Gebruiksoppervlakte wonen ca. 119 m2
  • Oppervlakte gebouwgebonden
  • Externe bergruimte
Toon meer

Heb je vragen?

Neem vrijblijvend contact met ons op

Plattegronden

Locatie

    Statistieken

    Leeftijd in gemeente

    0 - 15
    15 - 25
    25 - 45
    45 - 56
    65+

    Leeftijd buurt bewoners

    0 - 15
    15 - 25
    25 - 45
    45 - 56
    65+

    Burgelijke staat

    Gehuwd
    Ongehuwd
    Gescheiden
    Verweduwd

    Gezinnen met kinderen

    Met
    Zonder
    Geen

    Weet jij wat je kunt lenen?

    Charlotte checkt het gratis en snel, zodat we samen weten wat je mogelijkheden zijn om een nieuw huis aan te kopen.

    gesprek plannen
    samen succes

    Contact opnemen?