Leidsestraatweg 15, Harmelen - Sijmons Dolata
background-image

Leidsestraatweg 15

Harmelen
€ 749.000,- k.k.
123 m 2 230 m 2 3 C

Omschrijving

Je woont hier op een plek die je zelden tegenkomt: direct aan het water, grenzend aan het jaagpad en met vrij uitzicht over groen. Deze in 2022 compleet verbouwde twee-onder-één-kapwoning combineert het karakter van een woning uit 1920 met het comfort en de luxe van nu. Binnen ervaar je direct rust en kwaliteit. De woonkamer heeft aan de voorzijde de keuken. Wat meteen in het oog springt, is het ruime Dekton keukenblad en het grote fornuis. Dankzij de vele raampartijen kijk je vanuit de woonkamer prachtig uit op de tuin en het water. Voor een fijne balans tussen licht en privacy zijn op deze verdieping shutters geplaatst. De woning beschikt over een bijzonder luxe slaapkamer met badkamer en-suite. Hier slaap je onder een opengewerkt balkenplafond, met een ligbad dat pal voor het raam staat en uitkijkt over de de tuin en het water. Een unieke plek om tot rust te komen. De slaapkamer is verder voorzien van een inbouw kledingkast en een dubbele wastafel. Op de eerste verdieping vind je nog twee slaapkamers en aan de achterzijde een ruime werkplek. Deze ruimte is desgewenst eenvoudig te gebruiken als derde slaapkamer. Daarnaast is er een tweede badkamer aanwezig. Buiten wordt het pas écht bijzonder. De tuin ligt direct aan het jaagpad en het water en biedt het hele jaar door een prachtig, vrij uitzicht over het groen. De ruime veranda is volledig afsluitbaar, waardoor je hier in elk seizoen kunt genieten van de unieke ligging en het steeds veranderende uitzicht.

Begane grond, woongedeelte
Je komt binnen via een klassieke voordeur met een hardstenen onderdorpel. De zijgevel heeft zwarte rabbatdelen en is afgewerkt met een hardstenen lambrisering die doorloopt aan de voorzijde van de woning., Dit geeft een karaktervolle en verzorgde uitstraling. In de hal ervaar je meteen het comfort van nu. De stenen vloer is voorzien van vloerverwarming en combineert mooi met de strak gestuukte wanden en het plafond. Hier vind je naast de garderobe het toilet. Het toilet is vrijhangend en uitgevoerd met een fontein, geheel in dezelfde verzorgde stijl als de rest van de woning.
De woon- en eetkamer ademt sfeer en ruimte. Het originele balkenplafond geeft karakter, terwijl de gestuukte wanden zorgen voor een rustige, moderne basis. Aan de voorzijde is de open keuken in een U-opstelling geplaatst. Deze keuken is een echte blikvanger en voorzien van een 4-pits inductiekookplaat met schouw en afzuigkap, vaatwasmachine, 1¼ spoelbak, groot formaat koel- en vrieskast, oven en een combimagnetron. Zowel de woonkamer als de keuken zijn voorzijn van een airco. Aan de achterzijde zorgen de vele raampartijen voor een prachtige lichtinval en een directe verbinding met buiten. Via de deur stap je zo de tuin in, waar de veranda, het water en het groen meteen de hoofdrol spelen.

Begane grond, slaapkamer & sanitair
Vanuit de living loop je zo de slaapkamer binnen, die aanvoelt als een luxe hotelsuite. Het vrijstaande bad, het opengewerkte plafond en de zichtbare balken geven de ruimte een bijzondere, karaktervolle sfeer. De verdiepingsvloer is verwijderd, waardoor een open en luchtige uitstraling is ontstaan. Op de vloer ligt dezelfde tegelvloer als in de living en hal, compleet met vloerverwarming. De wanden zijn strak gestuukt, en de ruimte is voorzien van een dubbel wastafelmeubel en een inbouwkastenwand. Tevens is deze slaapkamer ook voorzien van een airco. De ramen zijn afgewerkt met shutters. Vanuit de slaapkamer is eveneens de tuin te bereiken.

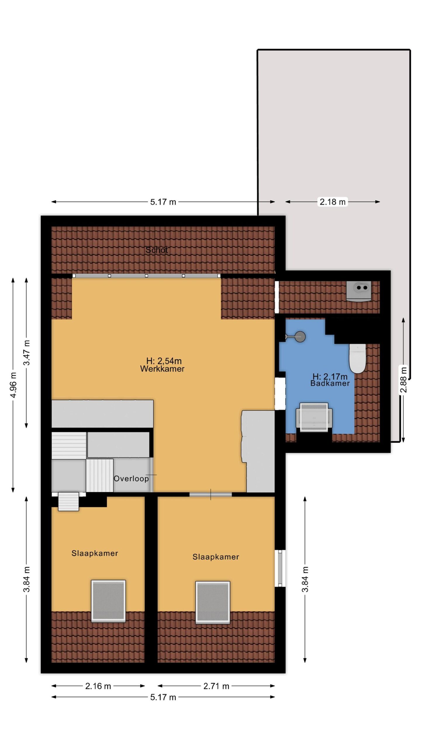
Eerste verdieping
Vanuit de living bereik je de eerste verdieping. Hier bevinden zich aan de voorzijde 2 slaapkamers, een 2e badkamer en aan de achterzijde een ruime werkruimte. Deze werkruimte is flexibel in te richten en kan bijvoorbeeld eenvoudig worden omgebouwd tot een derde slaapkamer. In een handige kastenwand zijn de wasmachine en droger weggewerkt. Ook is er veel extra bergruimte aanwezig. De gehele verdieping is voorzien van vloerbedekking en strak gestuukte wanden. De tweede badkamer is praktisch ingericht met een granito vloer, een inloopdouche, een toilet en een wastafelmeubel.

Tuin & veranda
De op het zuidwesten gelegen tuin biedt volop privacy en heeft een unieke ligging direct aan het jaagpad en het water van de Oude Rijn. met aanlegmogelijkheid voor 1 of zelfs 2 boten. In 45 minuten vaar je naar het gezellige centrum van Woerden voor een ijsje of terrasje. Zin in een langer avontuur? Varen naar de Nieuwkoopse of Vinkeveense plassen of verder. Heel Nederland ligt open vanaf het jaagpad. Vanuit de living of de slaapkamer stap je via de openslaande deuren zo de tuin in. Hier geniet je van het voorbijvaren van boten of van een rustig moment midden in de natuur. Aan de linkerkant van de woning staat een ruime veranda van circa 33 m², groot genoeg voor een eettafel en een gezellige zithoek. Dankzij de glazen pui kan deze ruimte volledig worden afgesloten en met de allesbrander is het er ook in het vroege voorjaar of late najaar heerlijk warm. De veranda is in dezelfde stijl van de woning en heeft zwart rabbat delen en hardstenen neuten onder de dragers. Tevens liggen er 6 zonnepanelen op het dak. Zo vormt de veranda een echt verlengstuk van de woning. Voor de veranda en de tuin is een aparte meterkast in de veranda aanwezig met omvormer en bedrade wifi, zodat je ook in de tuin en de veranda altijd het beste bereik hebt. Parkeren is mogelijk op de openbare weg aan de voorzijde van de woning, en aan de overzijde van de straat is extra openbare parkeergelegenheid aanwezig.

Lees verder

Kenmerken

  • Soort woning Twee onder een kapwoning
  • Type woning Beschikbaar
  • Bouwjaar 1920
  • Bouwvorm Bestaande bouw
  • Energie label C
  • Vraagprijs € 749.000,- Kosten koper
  • Aanvaarding In overleg
  • Soort dak Samengesteld dak
  • Onderhoud binnen Goed tot uitstekend
  • Onderhoud buiten Goed tot uitstekend
  • Aantal kamers 4 kamers
  • Aantal slaapkamers 3
  • Aantal badkamers 2 badkamers
  • Badkamervoorzieningen Ligbad, dubbele wastafel, toilet, douche, wastafel
  • Aantal woonlagen 2 woonlagen
  • Voorzieningen
  • Isolatie Dakisolatie, muurisolatie, vloerisolatie, dubbel glas
  • Verwarming Cv ketel
  • Warm water Cv ketel
  • C.v.-ketel type Gas
  • C.v.-ketel bouwjaar 2017
  • Eigendom Eigendom
  • Ligging Aan water, vrij uitzicht
  • Hoofdtuin Achtertuin
  • Oppervlakte hoofdtuin ca. 92m2
  • Ligging hoofdtuin Zuidwest
  • Achterom 1
  • Kwaliteit tuin Fraai aangelegd
  • Schuur / berging
  • Aantal schuren / bergingen
  • Voorzieningen
  • Parkeerfaciliteiten Openbaar parkeren
  • Garage Geen garage
  • Gebruiksoppervlakte wonen ca. 123 m2
  • Oppervlakte gebouwgebonden
  • Externe bergruimte ca. 32m2
Toon meer

Heb je vragen?

Neem vrijblijvend contact met ons op

Plattegronden

Locatie

    Downloads

    Statistieken

    Leeftijd in gemeente

    0 - 15
    15 - 25
    25 - 45
    45 - 56
    65+

    Leeftijd buurt bewoners

    0 - 15
    15 - 25
    25 - 45
    45 - 56
    65+

    Burgelijke staat

    Gehuwd
    Ongehuwd
    Gescheiden
    Verweduwd

    Gezinnen met kinderen

    Met
    Zonder
    Geen

    Weet jij wat je kunt lenen?

    Charlotte checkt het gratis en snel, zodat we samen weten wat je mogelijkheden zijn om een nieuw huis aan te kopen.

    gesprek plannen
    samen succes

    Contact opnemen?