Kerkweg 7, Kockengen - Sijmons Dolata
background-image

Kerkweg 7

Kockengen
€ 749.500,- k.k.
133 m 2 400 m 2 4 B

Omschrijving

Via een gezamenlijke brug bereik je deze leuk gelegen en uitgebouwde twee-onder-een-kapwoning. De woning is gebouwd in de jaren ’60 en is in de afgelopen jaren aanzienlijk vergroot en gemoderniseerd. Op de begane grond zijn onder andere ruime opbergmogelijkheden, evenals een sport- of hobbyruimte, een badkamer en een slaapkamer, waardoor gelijkvloers wonen tot de mogelijkheden behoort. Op de eerste verdieping bevinden zich nog 2 slaapkamers en een 2e badkamer. De zolderverdieping is momenteel ingericht als open ruimte, maar biedt na het plaatsen van dakkapellen eenvoudig de mogelijkheid om meerdere (slaap)kamers te creëren. De woon- en eetkamer heeft een opp. van circa 48 m² en staat in directe verbinding met de achterzijde van de woning. Hier is een aangebouwde veranda aanwezig, die afsluitbaar is met glazen deuren en daarmee het hele jaar door te gebruiken is. Parkeren kan gemakkelijk op eigen terrein, met ruimte voor twee auto’s. De voormalige garage is verbouwd tot een hobby- en sportruimte. In 2021 zijn er 12 zonnepanelen geïnstalleerd en in 2023 is de spouw compleet geïsoleerd, o.a. hierdoor heeft de woning een energielabel-B. Je woont hier op een rustige en prettige locatie, centraal gelegen tussen Utrecht en Amsterdam, die beide in ongeveer 20 minuten met de auto te bereiken zijn. De woning heeft een gebruiksoppervlakte wonen van 133 m², overig inpandige ruimte 58 m², inhoud ca. 698 m² en is gelegen op een perceel van 400 m².

Begane grond
Entree met hal, trapkast en toilet. Het toilet is vrijhangend en is tot het plafond betegeld. Ruime woon-/eetkamer met stenen vloer met vloerverwarming, schilderwerk wanden. De keuken is aan de achterzijde in een rechte opstelling geplaatst. De keuken is voorzien van een 4 pits inductie kookplaat, afzuigkap, koelkast, vriezer, verhoogd geplaatste vaatwasmachine en een combi-magentron. Aan de achterzijde is de veranda aanwezig.

Aanbouw begane grond met slaapkamer & badkamer
Vanuit de woon-/eetkamer is de voormalige garage te bereiken. De garage is nu in gebruik als sportruimte en hobby/klusruimte. De vloeren in deze ruimtes zijn van beton en merendeels voorzien van vloerverwarming. De wanden zijn voorzien van schilderwerk en er is tevens krachtstroom aanwezig. Via deze ruimtes is er aan de achterzijde een slaapkamer te vinden. Deze heeft openslaande deuren naar de tuin en een naastgelegen badkamer. De badkamer is voorzien van een vrijhangend toilet, douche en wastafel. Het geheel is tot het plafond betegeld.

Eerste verdieping
De eerste verdieping heeft 2 slaapkamers en een ruime badkamer. De slaapkamers hebben schilderwerk wanden en op de vloer ligt vloerbedekking. De hoofdslaapkamer is aan de achterzijde gelegen en heeft een inbouw kastenwand. Tevens heeft deze slaapkamer een airco met buiten unit.
De badkamer is voorzien van een jacuzzi, wastafelmeubel, douche en een vrijhangend toilet. Het geheel is tot het plafond betegeld.

Tweede verdieping
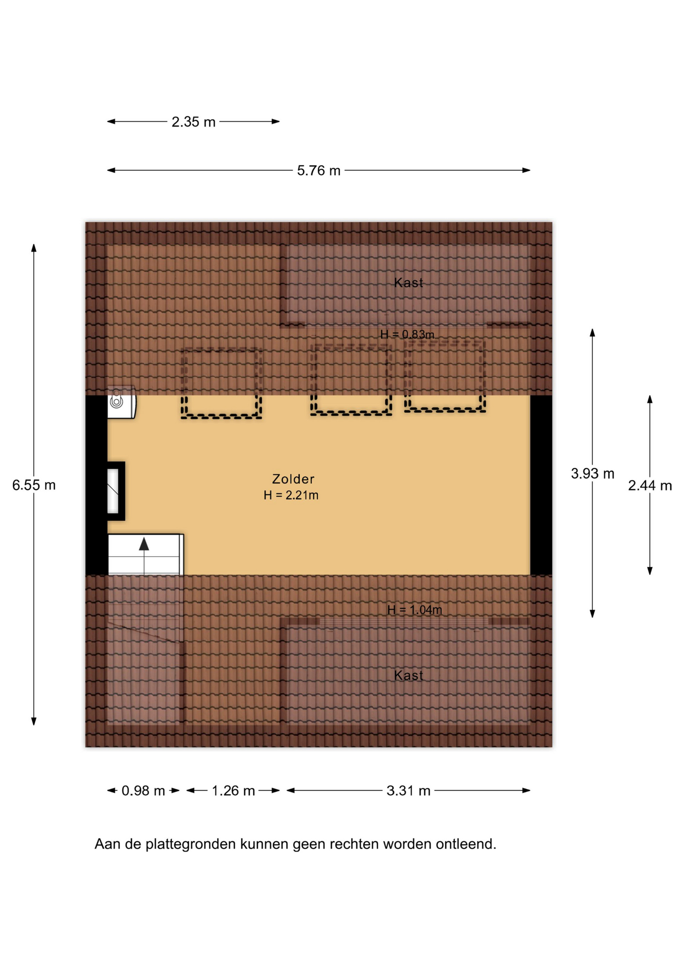
Deze verdieping is aan de achterzijde voorzien van drie dakramen. De vloer is een houten vloer en de wanden zijn geschilderd. Door het plaatsen van een dakkapel aan zowel de voor- als achterzijde ontstaan er bovendien volop mogelijkheden om deze verdieping verder in te delen en optimaal te benutten.

Lees verder

Kenmerken

  • Soort woning Twee onder een kapwoning
  • Type woning Beschikbaar
  • Bouwjaar 1963
  • Bouwvorm Bestaande bouw
  • Energie label B
  • Vraagprijs € 749.500,- Kosten koper
  • Aanvaarding In overleg
  • Soort dak Zadeldak
  • Onderhoud binnen Goed
  • Onderhoud buiten Goed
  • Aantal kamers 5 kamers
  • Aantal slaapkamers 4
  • Aantal badkamers 2 badkamers
  • Badkamervoorzieningen Ligbad, toilet, douche, wastafel, toilet, douche, wastafel
  • Aantal woonlagen 3 woonlagen
  • Voorzieningen
  • Isolatie Volledig geisoleerd
  • Verwarming Cv ketel
  • Warm water Cv ketel
  • C.v.-ketel type Gas
  • C.v.-ketel bouwjaar 2015
  • Eigendom Eigendom
  • Ligging In centrum
  • Hoofdtuin Achtertuin
  • Oppervlakte hoofdtuin ca. 84m2
  • Ligging hoofdtuin Noord
  • Achterom
  • Kwaliteit tuin Normaal
  • Schuur / berging Aangebouwd steen
  • Aantal schuren / bergingen 1
  • Voorzieningen Voorzien van elektra, voorzien van water
  • Parkeerfaciliteiten Op eigen terrein
  • Garage Geen garage
  • Gebruiksoppervlakte wonen ca. 133 m2
  • Oppervlakte gebouwgebonden ca. 18m2
  • Externe bergruimte
Toon meer

Heb je vragen?

Neem vrijblijvend contact met ons op

Plattegronden

Locatie

    Downloads

    Statistieken

    Leeftijd in gemeente

    0 - 15
    15 - 25
    25 - 45
    45 - 56
    65+

    Leeftijd buurt bewoners

    0 - 15
    15 - 25
    25 - 45
    45 - 56
    65+

    Burgelijke staat

    Gehuwd
    Ongehuwd
    Gescheiden
    Verweduwd

    Gezinnen met kinderen

    Met
    Zonder
    Geen

    Weet jij wat je kunt lenen?

    Charlotte checkt het gratis en snel, zodat we samen weten wat je mogelijkheden zijn om een nieuw huis aan te kopen.

    gesprek plannen
    samen succes

    Contact opnemen?